Pågående projekt
Varnum boarp 105, 52399 Hökerum
Varnum boarp 105, 52399 Hökerum12 000 000 SEK
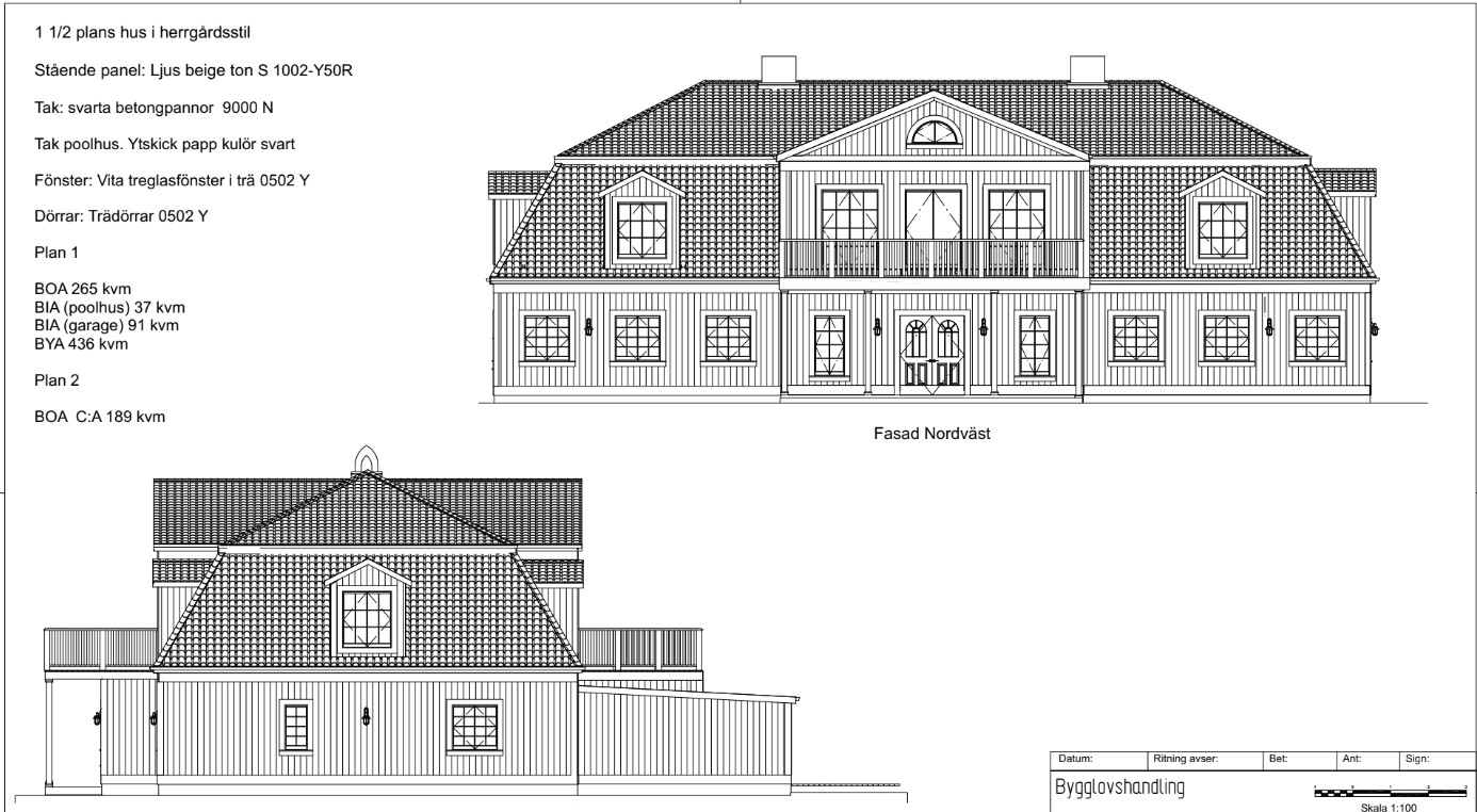
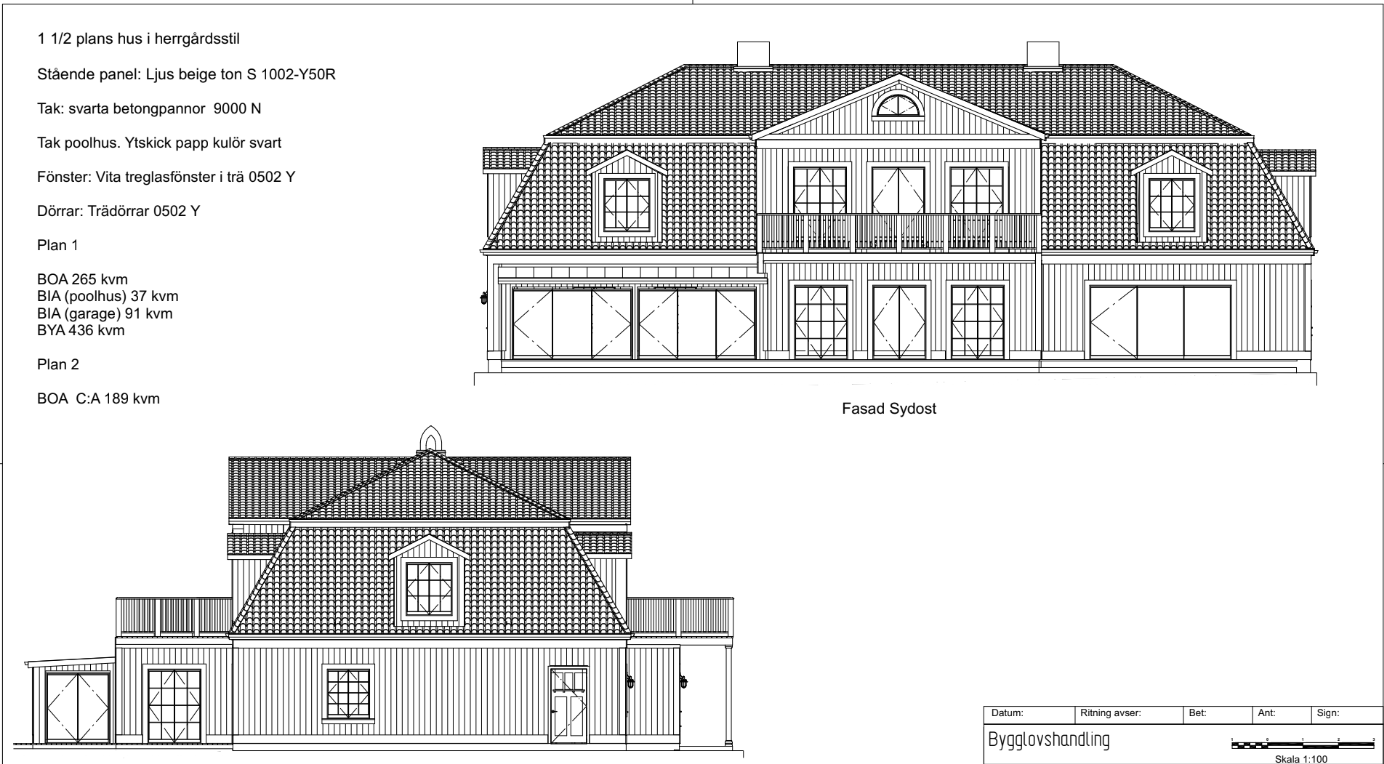
Herrgårdshus i Boarp om totalt 491 kvm plus 91kvm garage utrymme för 2 bilar, och en husbil.
1 ½ plans hus i herrgårdsstil
Tak: svarta betongpannor
Tak poolhus: Ytskick papp kulör svart
Fönster Vita treglasfönster i trä
Dörrar: Trädörrar
FTX ventilation
Egen brunn och eget avlopp
- Fiber
- Parkering
- Simbassäng
- Balkong
- Trädgård
- Solcellsanläggning
- Luftkonditionering
- Centralvärme
- Tvättstuga
- Våning: 2
- Number flats:1
- Projekttyp: Villa
Varnum boarp 105, 52399 Hökerum




